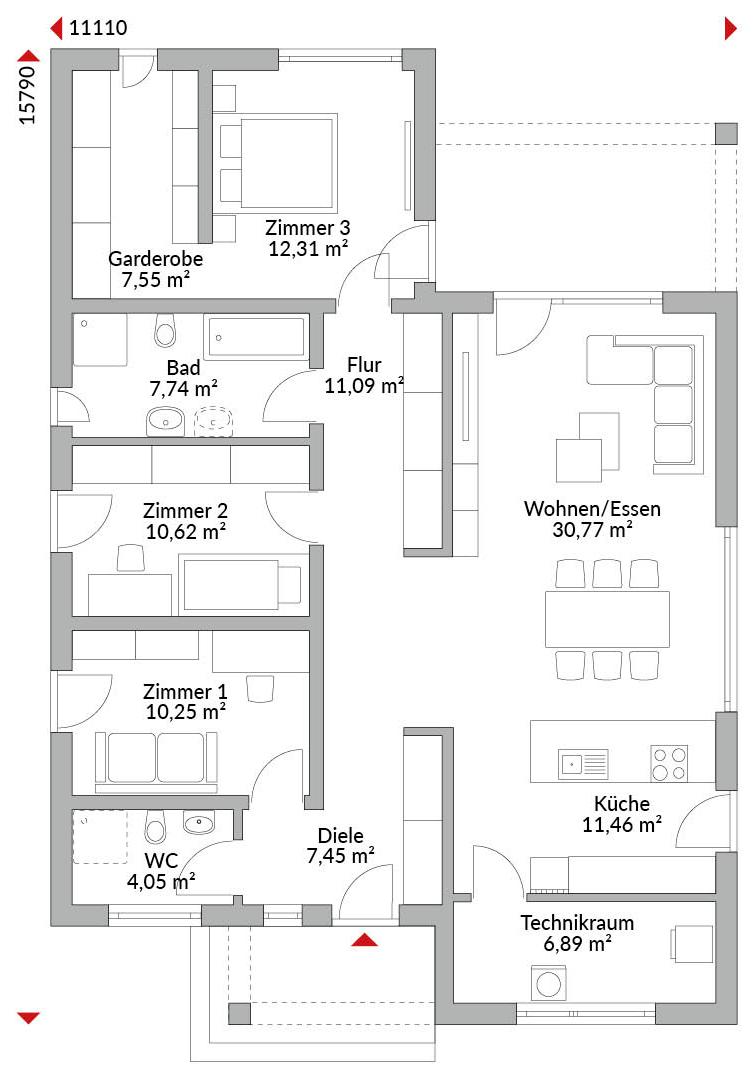
Winkelbungalow mit vier Zimmern, Ankleide, offener Küche, Bad, Gäste-WC (Duschbad möglich), Technikraum, Flur und Diele. Walmdach mit 25° Dachneigung inkl. Haustür-und Terrassenüberdachung.
*Abbildungen zeigen teilweise individuelle Zusatzausstattung.
Hausstandard Today
Vollständige Baubeschreibung und Materialspezifikation.

Grundrisse
Kompletter Plan aller Etagen mit Fläche






Klimafreundlich bauen für die Zukunft unserer Kinder.

Unsere Lösungen erleichtern den Alltag, steigern den Komfort und begleiten Sie zuverlässig – vom Aufstehen bis zum Schlafengehen.

Alles aus einer Hand – von der Planung bis zum Bau.