Eineinhalbgeschossiges Haus mit einem Zwerchgiebel, vier Zimmern, offener Küche, Bad, Gäste-WC, Technikraum und Diele, Satteldach mit 40° Dachneigung (Zwerchgiebeldach 35°), Kniestock 0,75 m.
*Abbildungen zeigen teilweise individuelle Zusatzausstattung.
Hausstandard Today
Vollständige Baubeschreibung und Materialspezifikation.

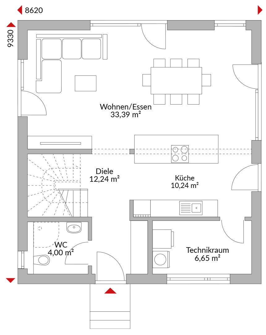
Grundrisse
Kompletter Plan aller Etagen mit Fläche

Klimafreundlich bauen für die Zukunft unserer Kinder.

Unsere Lösungen erleichtern den Alltag, steigern den Komfort und begleiten Sie zuverlässig – vom Aufstehen bis zum Schlafengehen.

Alles aus einer Hand – von der Planung bis zum Bau.