Eineinhalbgeschossiges Haus mit fünf Zimmern, einer Ankleide, offener Küche, Speisekammer, Bad, Gäste-WC, Technikraum, Diele und Flur, Satteldach mit 40° Dachneigung, Kniestock 0,75 m.
*Abbildungen zeigen teilweise individuelle Zusatzausstattung.
Hausstandard Today
Vollständige Baubeschreibung und Materialspezifikation.

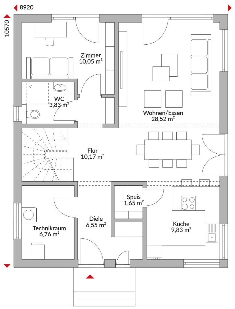
Grundrisse
Kompletter Plan aller Etagen mit Fläche

Klimafreundlich bauen für die Zukunft unserer Kinder.

Unsere Lösungen erleichtern den Alltag, steigern den Komfort und begleiten Sie zuverlässig – vom Aufstehen bis zum Schlafengehen.

Alles aus einer Hand – von der Planung bis zum Bau.