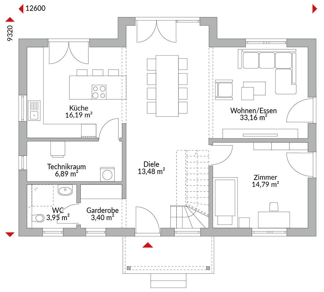
Eineinhalbgeschossiges Haus mit sechs Zimmern, offener Küche, Bad, Gäste-WC, Technikraum, Diele, Garderobe sowie zusätzlichem Zwerchgiebel. Satteldach mit 40° Dachneigung, Kniestock 1,00 m. Inklusive Zwerchgiebel, Balkon/Eingangsüberdchung.
*Abbildungen zeigen teilweise individuelle Zusatzausstattung.
Hausstandard Today
Vollständige Baubeschreibung und Materialspezifikation.

Grundrisse
Kompletter Plan aller Etagen mit Fläche

Klimafreundlich bauen für die Zukunft unserer Kinder.

Unsere Lösungen erleichtern den Alltag, steigern den Komfort und begleiten Sie zuverlässig – vom Aufstehen bis zum Schlafengehen.

Alles aus einer Hand – von der Planung bis zum Bau.